问建筑到底为几何?我想应该就是为了那几缕自然之光,毕竟建筑作为光影的容器,总是因为有光而变得有趣。随着时间的推移,光影在建筑内营造出温暖的氛围。相比较于讨论建筑风格,关心建筑的本质或许才更加重要,比如建筑的功能布局,事关使用者在建筑内的便利和生活习惯,建筑的用材和工艺,事关建筑整体的空间调性和建造成本,试问哪一个不比建筑风格来的更关键呢?
功能布局往往根据使用者的生活习惯,家庭人口构成而决定,又因为场地的差异,动静分区有着明显区别。建筑用材和工艺则与建筑预算息息相关。

对于住宅建筑而言,或许是跟普通人关联更加密切的建筑类型,毕竟小体量别墅才是普通人更加触手可及的建筑类型。这个建筑面积约为330㎡的别墅便是有很强借鉴价值的案例,项目场地规整,宽12米进深16米,约莫200㎡的用地跟很多乡村宅基地的规模很接近。这个尺度的建筑大小相宜,既能保障家庭的使用需求,又能将场地利用的更加高效。





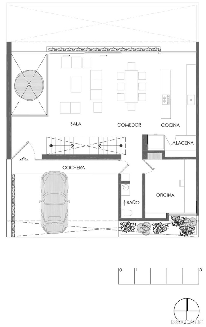
临道路一侧朝北,而朝向内部的南侧刚好是采光最佳朝向,所以建筑紧邻道路的立面以封闭姿态示人,这样给建筑有足够的私密性。而且少量的开窗极大的减少了道路噪音对建筑内部的影响,相比较于封闭的立面,朝向庭院的一侧势必要通过大面积的门窗来获取采光,由此一南一北,封闭与开放对比,让建筑的层次更加明显。






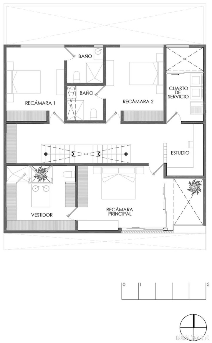
而建筑的用材更是显得尤为克制,这是对建筑风格化的主观弱化,建筑没有在装饰性元素上浪费成本,反而是根据功能本身造就当下的立面造型。内部丰富的空间层次让建筑内部的光影更加灵动,以作为交通空间的楼梯为功能组织核心,将其放置在建筑的中间位置。将动静分区于楼梯前后分开,在竖向上更是将私密的卧室区放在上层,这样建筑在使用上可以有效的将流线有效隔离。




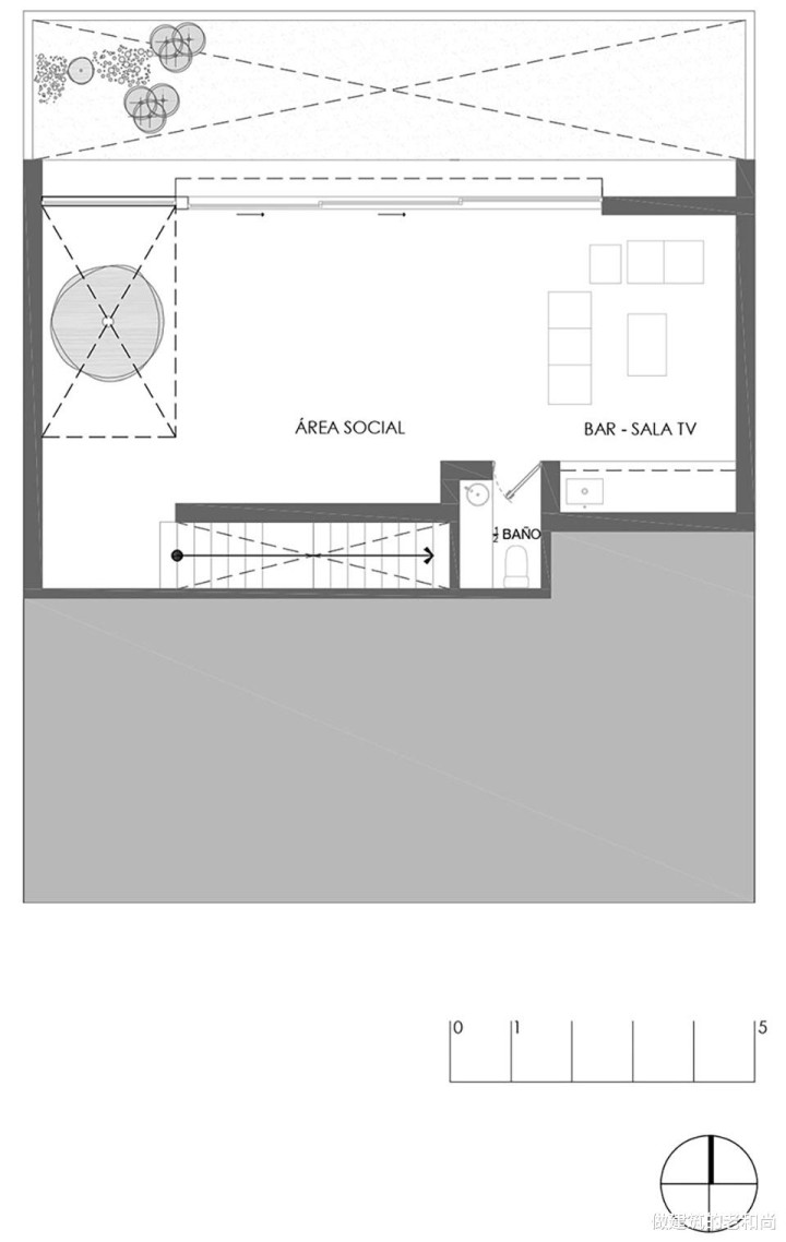
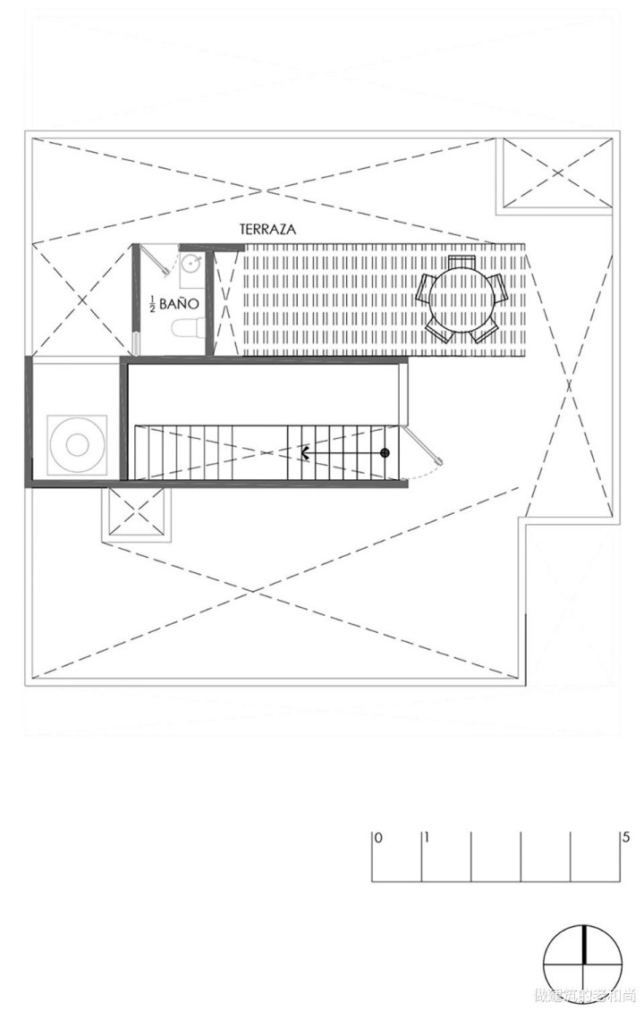
建筑体量更是控制在两三层之间,不仅有南侧朝向公共区域的小庭院,更是有楼顶露台休闲区,为使用者的居住提供更加丰富的空间形式。室内外空间的过渡显得更加平和,让室内外的空间界限更加模糊。像这样的私人别墅,你觉得有多少借鉴价值呢?在评论区给我留言,告诉我你的想法!项目信息General Information
Project Name: Arrayán House
Architecture Office: Eric Guzmán Arquitectos
Office Location: Morelia, Michoacán, México
Year of Construction Completion: 2025
Built area: 330 (m2)
Location: Morelia, Michoacán, México
Program: Semi-basement floor: TV room, bar, half bathroom, playroom, and garden.Ground floor: Living room, dining room, half bathroom, kitchen, pantry, and office. Upper floor: 2 bedrooms with full bathrooms, service room, master bedroom with terrace, walk-in closet, and full bathroom. Roof garden: Terrace with half bathroom.
Lead Architect(s): Eric Guzmán
Photograph
Photographer credits: César Belio